Raumaufteilung - Planungsvorschläge?
-
Manfred
Raumaufteilung - Planungsvorschläge?
Hallo,
ich habe eine Aufgabe für die Kreativen, Architekten und Permakulturplaner unter euch.
Mein Renovierungsprojekt geht in die Planungsphase.
Es handelt sich um ein altes Häuschen, das saniert werden soll.
Das EG hat die Funktion eines Kellers und ist hochwassergefährdet.
Das OG ist die Wohnebene.
Das DG besteht aus einem Spitzboden geringer Höhe. (Dort könnte man evtl. ein Gästebett unterbringen oder eine Hochbettebene für ein Kinderzimmer.
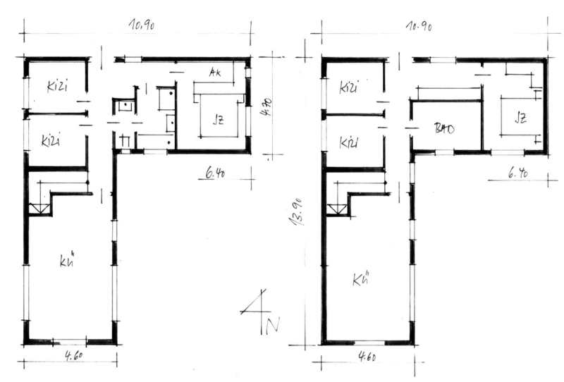
Im Anhang der aktuelle Grundriss des OG.
Die Raumaufteilung kann im komplett neu gemacht werden, inkl. der Kamine und Treppen.
Die beiden dick eingezeichneten Wände im Südwestlichen Teil sollten aber nach Möglichkeit bestehen bleiben.
Südlich schließt der Gemüsegarten an.
Westlich ein Feuchtstreifen (ehemaliger Mühlgraben) und dann ein steiler, bewaldeter Hang.
Nördich befinden sich Schuppen und Holzlege.
Östlich ist der Vorplatz/Hof und dann ein von Bäumen eingefasster Bach.
Sonne gibt es hauptsächlich aus Ost und Süd. Westlich steht ihr der bewaldete Berg im Weg.
Die Geschoßgrundfläche betägt ca. 90 m2.
Der Grundriss sollte für 1 bis 2 Personen ausggelegt sein + großer Büroraum.
Der Büroraum sollte die Option zur Umwandlung in 1 bis 2 Kinderzimmer haben, damit das Haus ohne große Änderungen auch von einer Familie bewohnt werden kann.
Ich bin sehr gespannt auf eure Ideen und Vorschläge.
ich habe eine Aufgabe für die Kreativen, Architekten und Permakulturplaner unter euch.
Mein Renovierungsprojekt geht in die Planungsphase.
Es handelt sich um ein altes Häuschen, das saniert werden soll.
Das EG hat die Funktion eines Kellers und ist hochwassergefährdet.
Das OG ist die Wohnebene.
Das DG besteht aus einem Spitzboden geringer Höhe. (Dort könnte man evtl. ein Gästebett unterbringen oder eine Hochbettebene für ein Kinderzimmer.
Im Anhang der aktuelle Grundriss des OG.
Die Raumaufteilung kann im komplett neu gemacht werden, inkl. der Kamine und Treppen.
Die beiden dick eingezeichneten Wände im Südwestlichen Teil sollten aber nach Möglichkeit bestehen bleiben.
Südlich schließt der Gemüsegarten an.
Westlich ein Feuchtstreifen (ehemaliger Mühlgraben) und dann ein steiler, bewaldeter Hang.
Nördich befinden sich Schuppen und Holzlege.
Östlich ist der Vorplatz/Hof und dann ein von Bäumen eingefasster Bach.
Sonne gibt es hauptsächlich aus Ost und Süd. Westlich steht ihr der bewaldete Berg im Weg.
Die Geschoßgrundfläche betägt ca. 90 m2.
Der Grundriss sollte für 1 bis 2 Personen ausggelegt sein + großer Büroraum.
Der Büroraum sollte die Option zur Umwandlung in 1 bis 2 Kinderzimmer haben, damit das Haus ohne große Änderungen auch von einer Familie bewohnt werden kann.
Ich bin sehr gespannt auf eure Ideen und Vorschläge.
- Dateianhänge
-
- grundriss.jpg (145.08 KiB) 1107 mal betrachtet
Re: Raumaufteilung - Planungsvorschläge?
Was mir an Deinem Grundriss auffällt: Du hast kein einziges Fenster eingezeichnet.
Auch die Treppenläufe kann man nicht erkennen.
Gibt es von dem Gebäude Fotos?
Wie soll das Haus geheizt werden?
Versorgungsleitungen?
Ist die Zeichnung genordet?
Auch die Treppenläufe kann man nicht erkennen.
Gibt es von dem Gebäude Fotos?
Wie soll das Haus geheizt werden?
Versorgungsleitungen?
Ist die Zeichnung genordet?
-
Manfred
Re: Raumaufteilung - Planungsvorschläge?
@gernot: Fenster sind runherum vorhanden und müssten eh alle ersetzt werden. Das eine oder andere zu versetzen wäre kein Problem. Allso alles frei planbar. Die 2 vorhandenen Treppen sind einfachste, sehr steile Holztreppen, wie man sie manchmal in alten Scheunen sieht. Können auch beliebig versetzt werden.
Skizze ist genordet (ist auch eingezeichnet).
Heizung weiß ich noch nicht. Das Haus ist im Strom und Wasser nicht erschlossen.
Entweder 2 Grundöfen + Notheizung mit Gas (falls im Winter längere Zeit keiner da sein kann) oder eine Schwerkraftheizung mit Holzkessel im Keller + 1 Kaminhofen fürs Heimelige im Wohngeschoss.
Einen Holzherd in der Küche hätte ich auch gerne, evtl. als Kombilösung mit Kachelofenfunktion.
Alles noch offen. Ich bin am Ideen sammeln. Deshalb keine Vorgaben. Wenn ich schon eine Planung hätte, würde ich nicht fragen.
Aktueller Stand meiner Überlegungen (wenn ich dazu komme, setzt ich heute Abend eine Skizze rein, mach nur grad Mittag und muss gleich wieder los):
Die Trennwand im südwestlichen Raum raus und da eine Wohnküche rein. Evtl. mit Außentreppe an der Südwand, direkt runter in den Gemüsegarten.
Haupteingang samt Windfang ins EG verlegen. (Danke an Wir5 für den Einfall).
Der große Räum nordöstlich als Büro. (Mit der Option zur Teilung in 2 Kinderzimmer. Ein Kinderzimmer dann etwas kleiner als das andere, dafür mit Schlafebene oben im Spitzboden).
Nordwestlich die Zwischenwände alle weg und ein großes Schlafzimmer hin.
Dazwischen Treppen (noch obeben evtl. nur eine einfache Dachbodenluke mit Klapptreppe), Flur, evtl. Gästetoilette und Besenkammer.
Den Raum Mitte West teilen in einen Flur auf der östlichen Seite (als Durchgang in die Küche, evtl. mit großem Wandschrank) und Badezimmer.
Hauptaufenthaltsräume wären die Wohnküche und das Büro, deshalb würde ich denen die Räume mit dem meisten Licht verpassen. Außerdem wäre der kurze Weg von der Küche in den Garten angenehm.
Skizze ist genordet (ist auch eingezeichnet).
Heizung weiß ich noch nicht. Das Haus ist im Strom und Wasser nicht erschlossen.
Entweder 2 Grundöfen + Notheizung mit Gas (falls im Winter längere Zeit keiner da sein kann) oder eine Schwerkraftheizung mit Holzkessel im Keller + 1 Kaminhofen fürs Heimelige im Wohngeschoss.
Einen Holzherd in der Küche hätte ich auch gerne, evtl. als Kombilösung mit Kachelofenfunktion.
Alles noch offen. Ich bin am Ideen sammeln. Deshalb keine Vorgaben. Wenn ich schon eine Planung hätte, würde ich nicht fragen.
Aktueller Stand meiner Überlegungen (wenn ich dazu komme, setzt ich heute Abend eine Skizze rein, mach nur grad Mittag und muss gleich wieder los):
Die Trennwand im südwestlichen Raum raus und da eine Wohnküche rein. Evtl. mit Außentreppe an der Südwand, direkt runter in den Gemüsegarten.
Haupteingang samt Windfang ins EG verlegen. (Danke an Wir5 für den Einfall).
Der große Räum nordöstlich als Büro. (Mit der Option zur Teilung in 2 Kinderzimmer. Ein Kinderzimmer dann etwas kleiner als das andere, dafür mit Schlafebene oben im Spitzboden).
Nordwestlich die Zwischenwände alle weg und ein großes Schlafzimmer hin.
Dazwischen Treppen (noch obeben evtl. nur eine einfache Dachbodenluke mit Klapptreppe), Flur, evtl. Gästetoilette und Besenkammer.
Den Raum Mitte West teilen in einen Flur auf der östlichen Seite (als Durchgang in die Küche, evtl. mit großem Wandschrank) und Badezimmer.
Hauptaufenthaltsräume wären die Wohnküche und das Büro, deshalb würde ich denen die Räume mit dem meisten Licht verpassen. Außerdem wäre der kurze Weg von der Küche in den Garten angenehm.
- Spottdrossel
- Beiträge: 2714
- Registriert: Mi 4. Aug 2010, 10:15
- Wohnort: Alsfeld
- Kontaktdaten:
Re: Raumaufteilung - Planungsvorschläge?
Südöstlich vielleicht eine kleine Frühstücksterrasse? Oder Minibalkon, wg. Sintflut. Wenn man´s im Sommer mal nicht eilig hat
.
Hühner sind auch nur Menschen...
http://www.spottdrossel.net
http://www.spottdrossel.net
-
paranoid
Re: Raumaufteilung - Planungsvorschläge?
Moinsen,
hab mal ein bisschen mit Sketchup rumgespielt.
Was mir immer wieder aufgefallen ist, ist die "Suizid"Tür ins nichts..
Ein paar Bilder von außen wären nicht schlecht dann kann man viel besser planen. Wo willst du eigentlich deinen Eingang haben,
im Erd/Kellergeschoss oder durch die S.Tür oder noch ein Balkon(und wenn ja wie groß maximal minimal, Baurecht, Nachbarn... etc...)
Mit freundlichen Grüßen
der Paranoide nicht Architekt...
PS: Alle Maße so gut es mir möglich wahr aus deinen Grundriss übernommen... muss aber trotzdem nicht fehler frei sein...
PPS: Forum mag keine skp
also
hab mal ein bisschen mit Sketchup rumgespielt.
Was mir immer wieder aufgefallen ist, ist die "Suizid"Tür ins nichts..
Ein paar Bilder von außen wären nicht schlecht dann kann man viel besser planen. Wo willst du eigentlich deinen Eingang haben,
im Erd/Kellergeschoss oder durch die S.Tür oder noch ein Balkon(und wenn ja wie groß maximal minimal, Baurecht, Nachbarn... etc...)
Mit freundlichen Grüßen
der Paranoide nicht Architekt...
PS: Alle Maße so gut es mir möglich wahr aus deinen Grundriss übernommen... muss aber trotzdem nicht fehler frei sein...
PPS: Forum mag keine skp
-
Manfred
Re: Raumaufteilung - Planungsvorschläge?
Ich hab deinen Link gelöscht.
Konnte da kein File runterladen. Die Seite ist verseucht, ändern Browsereinstellungen und versucht irgendeine Software zu installieren...
Da werde ich paranoid.
Konnte da kein File runterladen. Die Seite ist verseucht, ändern Browsereinstellungen und versucht irgendeine Software zu installieren...
Da werde ich paranoid.
-
paranoid
Re: Raumaufteilung - Planungsvorschläge?
ein tipp für einen nicht verseuchten datei hoster? möglichst ohne anmeldung
-
Manfred
Re: Raumaufteilung - Planungsvorschläge?
Du könntest es mir auch per Email senden. Siehe Impressum.
Dann müsste ich trotzdem erst Sketchup installieren.
Kann Sketchup das nicht als einfach Bilddatei (.jpg, .bmp etc.) oder .pdf abspeichern?
Dann müsste ich trotzdem erst Sketchup installieren.
Kann Sketchup das nicht als einfach Bilddatei (.jpg, .bmp etc.) oder .pdf abspeichern?
Re: Raumaufteilung - Planungsvorschläge?
Mal ein Versuch zum Rantasten, der Zuschnitt ist ziemlich spannend;)
Was mir nicht klar war, sind wie sind die Mauerstärken der Aussenwände, bin mal mit deinen Aussenmaßen mit 24cm rangegangen.
Was mir nicht klar war, sind wie sind die Mauerstärken der Aussenwände, bin mal mit deinen Aussenmaßen mit 24cm rangegangen.
- Dateianhänge
-
- neu-1.jpg (25.4 KiB) 1944 mal betrachtet
It's not the hammer - it is the way you hit.
Re: Raumaufteilung - Planungsvorschläge?
... war zwischendurch mal fix am Lagerfeuer,
jetzt noch paar Worte zu dem Ansatz, ist ja eigentlich 2x fast dasselbe.
Hab versucht, den Südflügel so groß wie möglich für einen zentralen Küchenbereich zu halten,
der Raum hat knapp 28qm, was auch nicht grade prall ist.
Wohnzimmer gibt das nicht mehr her, braucht auch kein SV;-)
Interessant wäre, inwiefern Durchgangszimmer eine Option wären, das ergäbe neue Möglichkeiten,
hab aber versucht, erstmal ohne DGZ auszukommen (bis auf das WC im linken Bild, das ist aber auch schon mehr als grenzwertig ...
Geschoßhöhen kenne ich nicht, die dargestellten Treppen sind angenommen mit 2.85 GH, bei verzogenen Treppen mit 15 Stg a' 19/26. Podesttreppen sind zwar wesentlich bequemer/sicherer zu begehen, aber das gibt der Platz kaum her.
Kamine/Schornsteine hab ich mal aussen vor gelassen, das geht zusehr ins Detail, ebenso die Anordnung der (bisher unbekannten) Fensteröffnungen ...
wobei Manfred mir hier nicht ganz klar ist, warum du die Bestandsfenster nicht eingezeichnet hast, willst du wirklich _alle_ Stürze versetzen?
Ansonsten, das war nur eine Idee, bei der ich mich an die gegebenen Außenmaße gehalten habe, und die ist noch lange nicht perfekt, also bitte nicht hauen;-) hab also versucht, aus der Vorgabe was zu basteln, ohne die möglichen Spielräume (Anbauten/DGZ's) genau zu kennen/anzudenken.
jetzt noch paar Worte zu dem Ansatz, ist ja eigentlich 2x fast dasselbe.
Hab versucht, den Südflügel so groß wie möglich für einen zentralen Küchenbereich zu halten,
der Raum hat knapp 28qm, was auch nicht grade prall ist.
Wohnzimmer gibt das nicht mehr her, braucht auch kein SV;-)
Interessant wäre, inwiefern Durchgangszimmer eine Option wären, das ergäbe neue Möglichkeiten,
hab aber versucht, erstmal ohne DGZ auszukommen (bis auf das WC im linken Bild, das ist aber auch schon mehr als grenzwertig ...
Geschoßhöhen kenne ich nicht, die dargestellten Treppen sind angenommen mit 2.85 GH, bei verzogenen Treppen mit 15 Stg a' 19/26. Podesttreppen sind zwar wesentlich bequemer/sicherer zu begehen, aber das gibt der Platz kaum her.
Kamine/Schornsteine hab ich mal aussen vor gelassen, das geht zusehr ins Detail, ebenso die Anordnung der (bisher unbekannten) Fensteröffnungen ...
wobei Manfred mir hier nicht ganz klar ist, warum du die Bestandsfenster nicht eingezeichnet hast, willst du wirklich _alle_ Stürze versetzen?
Ansonsten, das war nur eine Idee, bei der ich mich an die gegebenen Außenmaße gehalten habe, und die ist noch lange nicht perfekt, also bitte nicht hauen;-) hab also versucht, aus der Vorgabe was zu basteln, ohne die möglichen Spielräume (Anbauten/DGZ's) genau zu kennen/anzudenken.
It's not the hammer - it is the way you hit.
